Váš prehliadač nepodporuje JavaScript!!! Niektoré stránky nebudú pracovať správne!

Byt č.A08

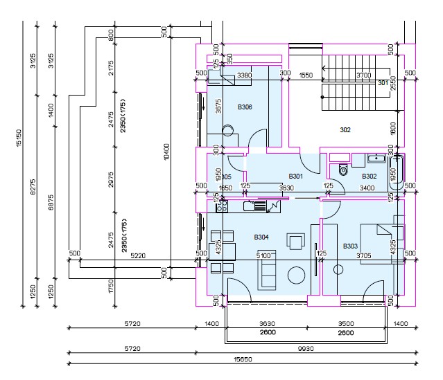
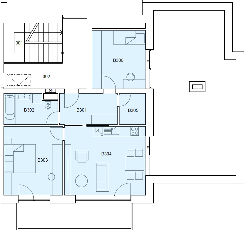
Pôdorys bytu č.A 08

Pôdorys byt A08
Cena holobytu:

Doplatok za štandard:
11 500
Príplatok za vonkajšie parkovacie miesto:
7 500 €

3-izbový byt A 08

Výmera interiéru:
66,98 m2
Počet izieb:
3+kk
Parametre bytu
ČÍSLO BYTU:
A 08
POSCHODIE:
3.podlažie
PARKOVACIE MIESTO:
áno (vonkajšie)
DISPOZÍCIA:
3+KK
CELKOVÁ UŽITKOVÁ PLOCHA:
68,75 m2
INTERIÉR:
66,98 m2
PIVNICA/ SKLAD:
1,77 m2
TERASA/LOGGIA/BALKÓN:
50 m2
STAV:

pripravujeme

68,75 m2
LEGENDA MIESTNOSTÍ
č.m. názov m2
B301 Zádverie 7,08 m2
B302 Kúpelňa 6,18 m2
B303 Izba 16,02 m2
B304 Obývacia izba s kuch. kútom 22,06 m2
B305 Komora 3,22 m2
Plocha interiéru 66,98 m2
Terasa + Loggia 50 m2
Pivnica/sklad 1.NP 1,77 m2
Parkovacie miesto vonkajšie
Celková plocha
Pôdorys sever
Výmery miestnosti majú informatívny charakter a nezahŕňajú plochu pod priečkami. Uvedené rozmery sú predbežné a nemusia sa zhodovať s realizačným projektom. Zmeny vyhradené. Riešenie zariadenia je ilustračné, rozsah štandardu je popísaný v špecifikáci. K bytu je potrebné zakúpiť parkovacie státie.