Ponuka bytov
Vyberte si váš nový byt ešte dnes.
Ponuka bytov, ktoré už čakajú len na vás - Rezidencia Ku kyselke.
Rozhodnite sa ešte dnes, aby vás niekto nepredbehol. Záujemcov pribúda každým dňom.
Informácie a údaje vrátane vizualizácií sú čisto informatívneho charakteru.
Vyberte bytový dom.
Vyberte bytový dom.
Vyberte bytový dom.
Vyberte bytový dom.
Zoznam bytov v bytových domoch A, B a C
| Číslo | Dom | Podlažie | Dispozícia | Interiér | Pivnica/sklad | Terasa/loggia/balkón | Predzáhradka | Cena s DPH | Doplatok-štandard | Stav | |
|---|---|---|---|---|---|---|---|---|---|---|---|
| B01 | Bytový dom B | 1.NP | 2+kk | 51,1 m2 | sklad 2,15 m2 | predzáhradka | 0 | 149 990€ | 10 000€ | voľný | |
| B02 | Bytový dom B | 1.NP | 2+kk | 54,6 m2 | sklad 2,15 m2 | predzáhradka | 0 | 159 500€ | 10 000€ | voľný | |
| B03 | Bytový dom B | 1.NP | 2+kk | 51,1 m2 | sklad 2,15 m2 | predzáhradka | 0 | 154 900€ | 10 000€ | voľný | |
| B04 | Bytový dom B | 2.NP | 2+kk | 51,1 m2 | sklad 2,15 m2 | balkón 4,38 m2 | 0 | 144 900€ | 10 000€ | voľný | |
| B05 | Bytový dom B | 2.NP | 2+kk | 54,6 m2 | sklad 2,15 m2 | loggia 8,92 m2 | 0 | rezervovaný | |||
| B06 | Bytový dom B | 2.NP | 2+kk | 51,1 m2 | sklad 2,15 m2 | balkón 4,38 m2 | 0 | rezervovaný | |||
| B07 | Bytový dom B | 3.NP | 2+kk | 51,1 m2 | sklad 1,77 m2 | balkón 4,38 m2 | 0 | rezervovaný | |||
| B08 | Bytový dom B | 3.NP | 3+kk | 67 m2 | sklad 1,77 m2 | loggia a terasa 50 m2 | 0 | rezervovaný | |||
| A01 | Bytový dom A | 1.NP | 2+kk | 51,1 m2 | sklad 2,15 m2 | predzáhradka | 0 | pripravujeme | |||
| A02 | Bytový dom A | 1.NP | 2+kk | 54,6 m2 | sklad 2,15 m2 | predzáhradka | 0 | pripravujeme | |||
| A03 | Bytový dom A | 1.NP | 2+kk | 51,1 m2 | sklad 2,15 m2 | predzáhradka | 0 | pripravujeme | |||
| A04 | Bytový dom A | 2.NP | 2+kk | 51,1 m2 | sklad 2,15 m2 | balkón 4,38 m2 | 0 | pripravujeme | |||
| A05 | Bytový dom A | 2.NP | 2+kk | 54,6 m2 | sklad 2,15 m2 | loggia 8,92 m2 | 0 | pripravujeme | |||
| A06 | Bytový dom A | 2.NP | 2+kk | 51,1 m2 | sklad 2,15 m2 | balkón 4,38 m2 | 0 | pripravujeme | |||
| A07 | Bytový dom A | 3.NP | 2+kk | 51,1 m2 | sklad 1,77 m2 | balkón 4,38 m2 | 0 | pripravujeme | |||
| A08 | Bytový dom A | 3.NP | 3+kk | 67 m2 | sklad 1,77 m2 | loggia a terasa 50 m2 | 0 | pripravujeme | |||
| C01 | Bytový dom C | 1.NP | 2+kk | 51,1 m2 | sklad 2,15 m2 | predzáhradka | 0 | pripravujeme | |||
| C02 | Bytový dom C | 1.NP | 2+kk | 54,6 m2 | sklad 2,15 m2 | predzáhradka | 0 | pripravujeme | |||
| C03 | Bytový dom C | 2.NP | 2+kk | 51,1 m2 | sklad 2,15 m2 | balkón 4,38 m2 | 0 | pripravujeme | |||
| C04 | Bytový dom C | 2.NP | 2+kk | 54,6 m2 | sklad 2,15 m2 | loggia 8,92 m2 | 0 | pripravujeme | |||
| C05 | Bytový dom C | 2.NP | 3+kk | 67 m2 | sklad 2,15 m2 | loggia a terasa 50 m2 | 0 | pripravujeme |
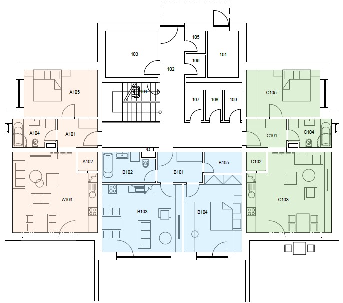
BYTOVÝ DOM B - pôdorysy jednotlivých poschodí
Pôdorys 1.NP - bytový dom B
Pôdorys 2.NP - bytový dom B
Pôdorys 3.NP - bytový dom B