Váš prehliadač nepodporuje JavaScript!!! Niektoré stránky nebudú pracovať správne!

Byt č.B04

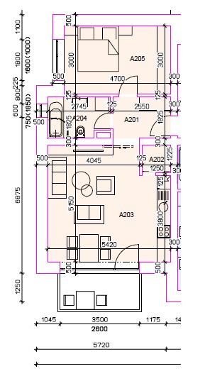
Pôdorys bytu č.B 04

Pôdorys byt B04
Cena holobytu:

144 900

Doplatok za štandard:
10 000
Príplatok za vonkajšie parkovacie miesto:
7 500 €

2-izbový byt B 04

Výmera interiéru:
51,1 m2
Počet izieb:
2+kk
Parametre bytu
ČÍSLO BYTU:
B 04
POSCHODIE:
2.podlažie
PARKOVACIE MIESTO:
áno (vonkajšie)
DISPOZÍCIA:
2+KK
CELKOVÁ UŽITKOVÁ PLOCHA:
53,25 m2
INTERIÉR:
51,10 m2
PIVNICA/ SKLAD:
2,15 m2
TERASA/LOGGIA/BALKÓN:
4,38 m2
STAV:

voľný

LEGENDA MIESTNOSTÍ
č.m. názov m2
A201 Zádverie 4,65 m2
A202 Komora 1,53 m2
A203 Obývacia izba s kuchynským kútom 26,06 m2
A204 Kúpelňa 4,76 m2
A205 Izba 14,10 m2
Plocha interiéru 51,10 m2
Balkón 4,38 m2
Pivnica/sklad 1.NP 2,15 m2
Parkovacie miesto vonkajšie
Celková plocha 53,25 m2
Pôdorys sever
Výmery miestnosti majú informatívny charakter a nezahŕňajú plochu pod priečkami. Uvedené rozmery sú predbežné a nemusia sa zhodovať s realizačným projektom. Zmeny vyhradené. Riešenie zariadenia je ilustračné, rozsah štandardu je popísaný v špecifikáci. K bytu je potrebné zakúpiť parkovacie státie.