Váš prehliadač nepodporuje JavaScript!!! Niektoré stránky nebudú pracovať správne!

Byt č.B03

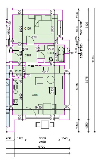
Pôdorys bytu č.B 03

Pôdorys byt B03
Cena holobytu:

Doplatok za štandard:
10 000
Príplatok za vonkajšie parkovacie miesto:
7 500 €
Pre tento byt je možný
Príplatok za predzáhradku:
7 000 €

2-izbový byt B 03

Výmera interiéru:
51,1 m2
Počet izieb:
2+kk
Parametre bytu
ČÍSLO BYTU:
B 03
POSCHODIE:
1.podlažie
PARKOVACIE MIESTO:
áno (vonkajšie)
DISPOZÍCIA:
2+KK
CELKOVÁ UŽITKOVÁ PLOCHA:
53,25 m2
INTERIÉR:
51,10 m2
PIVNICA/ SKLAD:
2,15 m2
TERASA/LOGGIA/BALKÓN:
predzáhradka
STAV:

rezervovaný

LEGENDA MIESTNOSTÍ
č.m. názov m2
C101 Zádverie 4,65 m2
C102 Komora 1,53 m2
C103 Obývacia izba s kuchynským kútom 26,06 m2
C104 Kúpelňa 4,76 m2
C105 Izba 14,10 m2
Plocha interiéru 51,10 m2
Balkón možnosť dokúpiť predzahrádku
Pivnica/sklad 1.NP 2,15 m2
Parkovacie miesto vonkajšie
Celková plocha 53,25 m2
Pôdorys sever
Výmery miestnosti majú informatívny charakter a nezahŕňajú plochu pod priečkami. Uvedené rozmery sú predbežné a nemusia sa zhodovať s realizačným projektom. Zmeny vyhradené. Riešenie zariadenia je ilustračné, rozsah štandardu je popísaný v špecifikáci. K bytu je potrebné zakúpiť parkovacie státie.