Váš prehliadač nepodporuje JavaScript!!! Niektoré stránky nebudú pracovať správne!

Byt č.C04

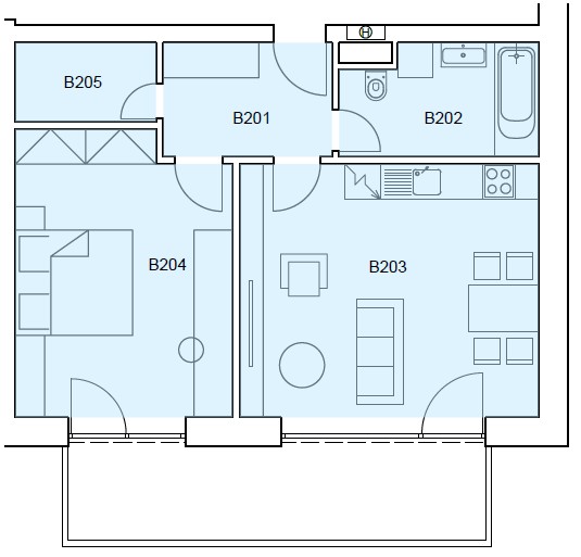
Pôdorys bytu č.C 04

Pôdorys byt A05
Cena holobytu:

Doplatok za štandard:
10 000
Príplatok za vonkajšie parkovacie miesto:
7 500 €

2-izbový byt C 04

Výmera interiéru:
54,56 m2
Počet izieb:
2+kk
Parametre bytu
ČÍSLO BYTU:
C 04
POSCHODIE:
2.podlažie
PARKOVACIE MIESTO:
áno (vonkajšie)
DISPOZÍCIA:
2+KK
CELKOVÁ UŽITKOVÁ PLOCHA:
56,71 m2
INTERIÉR:
54,56 m2
PIVNICA/ SKLAD:
2,15 m2
TERASA/LOGGIA/BALKÓN:
8,92 m2
STAV:

pripravujeme

LEGENDA MIESTNOSTÍ
č.m. názov m2
B201 Zádverie 5,62 m2
B202 Kúpelňa 6,18 m2
B203 Obývacia izba s kuchynským kútom 22,06 m2
B204 Izba 17,46 m2
B205 Komora 3,24 m2
Plocha interiéru 54,56 m2
Balkón 8,92 m2
Pivnica/sklad 1.NP 2,15 m2
Parkovacie miesto vonkajšie
Celková plocha 56,71 m2
Pôdorys sever
Výmery miestnosti majú informatívny charakter a nezahŕňajú plochu pod priečkami. Uvedené rozmery sú predbežné a nemusia sa zhodovať s realizačným projektom. Zmeny vyhradené. Riešenie zariadenia je ilustračné, rozsah štandardu je popísaný v špecifikáci. K bytu je potrebné zakúpiť parkovacie státie.